Built by locals who actually live here
12485 Pensador Drive
44 photos
44 photos
Front of Structure
Entry
Living Room
Kitchen
Kitchen
Kitchen
Dining Area
Dining Area
Living Room
Living Room
Office
Office
Bedroom
Bedroom
Bathroom
Bathroom
Closet
Other
Bedroom
Bedroom
Bathroom
Mud Room
Laundry
Living Room
Living Room
Living Room
Kitchen
Dining Area
Bedroom
Bedroom
Bathroom
Other
Patio
Yard
Front of Structure
Front of Structure
Aerial View
Aerial View
Aerial View
Front of Structure
Front of Structure
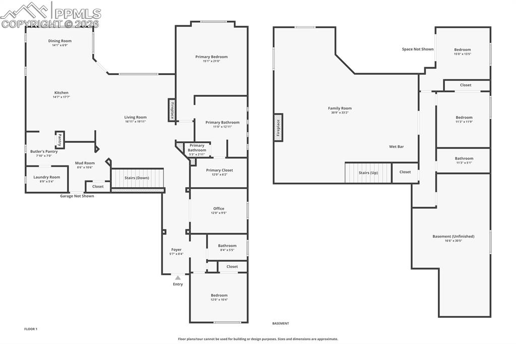
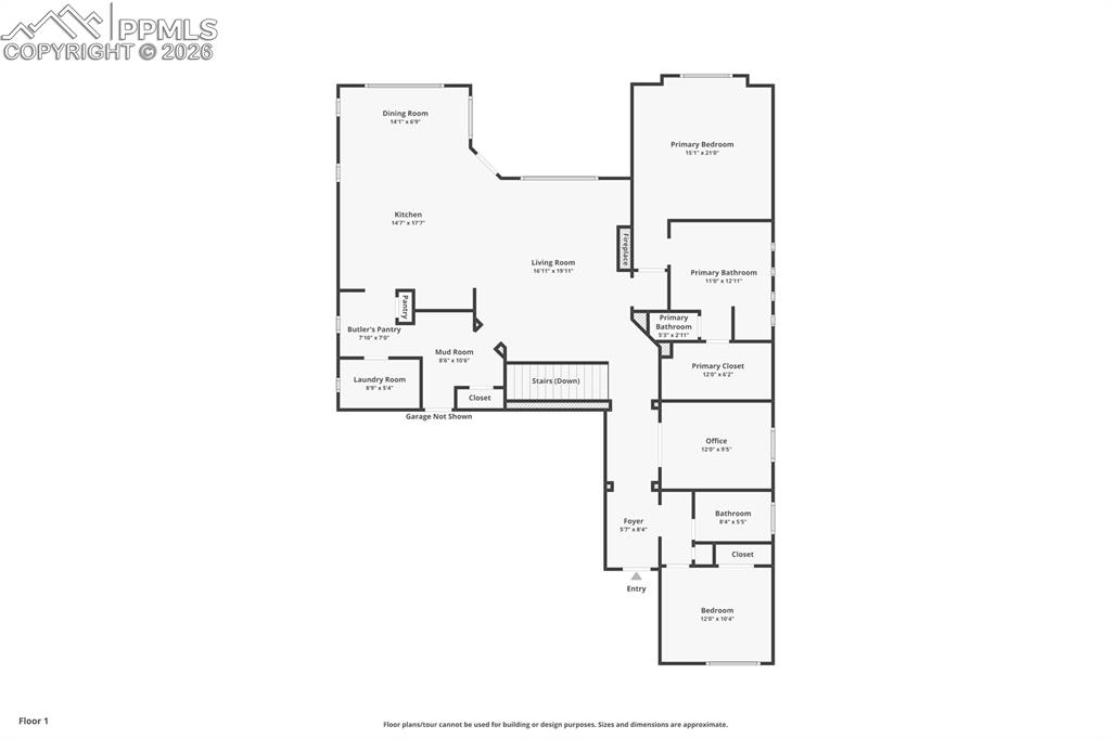
Floor Plan
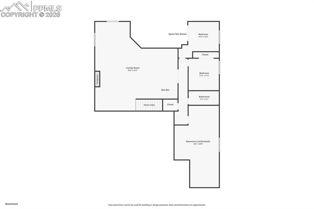
Floor Plan
Floor Plan
$1,065,000
12485 Pensador Drive
Colorado Springs, CO 80921
Northgate, Briargate
Listed by Jason Daniels CDPE CIAS CLHMS MRP , Finch & Gable Real Estate Company · 719-999-8901
Active
Pikes Peak MLS

IDX listings provided by

Joseph Gary

RE/MAX Real Estate Group

12265 Oracle Blvd, Ste 200, Colorado Springs, CO 80921

4
Beds
3
Baths
3,958
Sq Ft

About This Home

Positioned on a spacious corner lot in the desirable Flying Horse community, this well-appointed ranch-style home offers main-level living, a fully finished basement, and access to premier neighborhood amenities, all within Academy School District 20. Built by Vantage Homes, the Mustang floor plan balances classic design and functionality. Hardwood flooring, beamed ceilings, and an open layout define the main level, creating an inviting setting for everyday living and entertaining. The gourmet kitchen features stone countertops, an oversized island, custom cabinetry, double ovens, and a walk-in pantry, flowing into the dining area and living room with a gas fireplace and walkout access. A dedicated office with custom built-ins provides a practical workspace. The primary suite offers walkout access, a walk-in closet, and an en-suite bath with dual vanities and a large zero-entry shower. A secondary main-level bedroom, full bathroom, and laundry room complete the main floor. The finished basement expands the home with a spacious family room featuring additional custom built-ins ideal for media use, a second gas fireplace, and a wet bar. Two additional bedrooms and a full bath accommodate guests, while an unfinished area offers potential for a future bedroom, bathroom, or home gym. Set on nearly half an acre, the level corner lot offers privacy and established landscaping, with a neighborhood park nearby. Residents enjoy Flying Horse amenities including a clubhouse, fitness center, pool, golf course, trails, and community spaces. With a three-car attached garage, stucco exterior, central air, and a prime location near shopping, dining, hospitals, and commuter routes, this home offers comfortable Colorado living in one of the area’s most desirable communities.

Property Details

Status Active
Price / Sq Ft $269
Bedrooms 4
Bathrooms 3
Square Feet 3,958
City Colorado Springs
Neighborhoods Northgate, Briargate
Year Built 2017
Lot Size 0.46
Property Type Residential
MLS # 6185961
Pikes Peak MLS

The real estate listing information and related content displayed on this site is provided exclusively for consumers' personal, non-commercial use and may not be used for any purpose other than to identify prospective properties consumers may be interested in purchasing. This information and related content is deemed reliable but is not guaranteed accurate by the Pikes Peak REALTOR® Services Corp.

Tour this home for free

No commitment, no strings attached. Just tell us when and we'll set it up.

Listing Info
Listed Feb 26, 2026
Updated Mar 20, 2026
MLS # 6185961

Sign in to colorado.house

We'll text you a code to verify your number.

Standard message rates may apply.

Get in touch with a local expert

Tell us what you're looking for and we'll be in touch shortly.