Built by locals who actually live here
12431 Mount Bross Place
41 photos
41 photos
Front of Structure
Front of Structure
Entry
Kitchen
Kitchen
Kitchen
Dining Area
Living Room
Kitchen
Bedroom
Bedroom
Bathroom
Bathroom
Bathroom
Bedroom
Office
Office
Bathroom
Entry
Game Room
Basement
Game Room
Exercise Room
Bedroom
Bathroom
Back of Structure
Deck
Back of Structure
Deck
Back of Structure
Other
Yard
Other
Aerial View
Aerial View
Aerial View
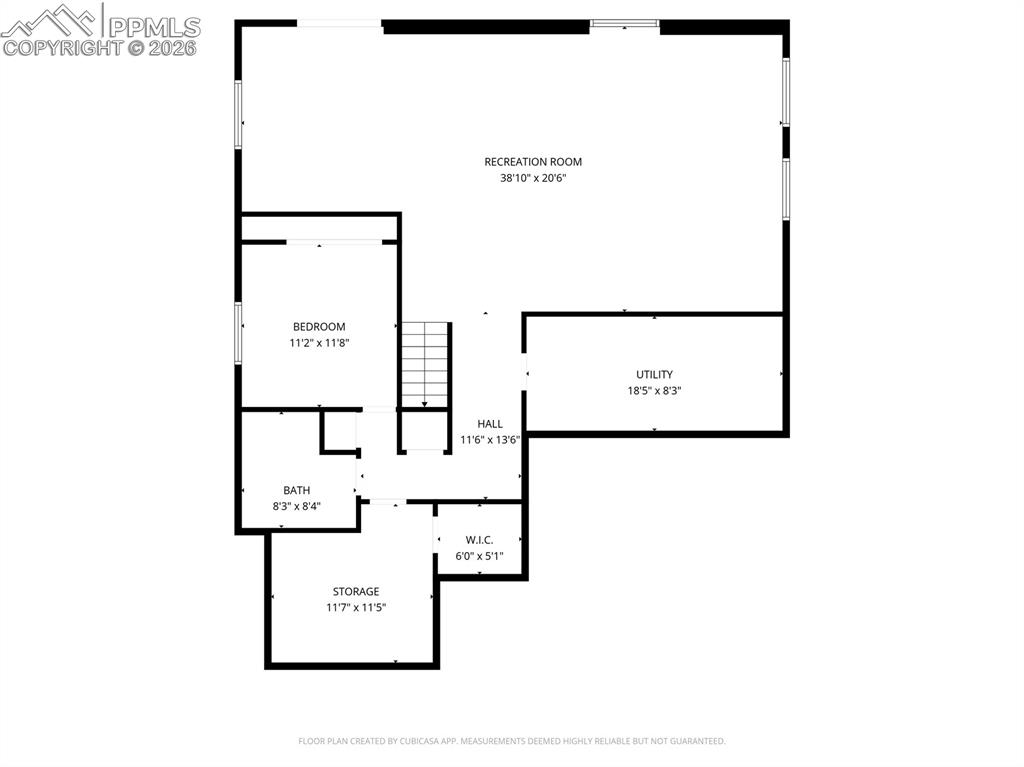
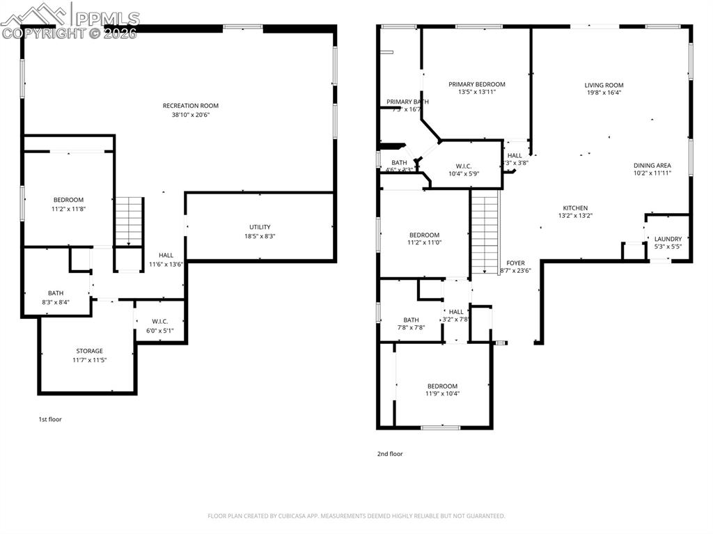
Floor Plan
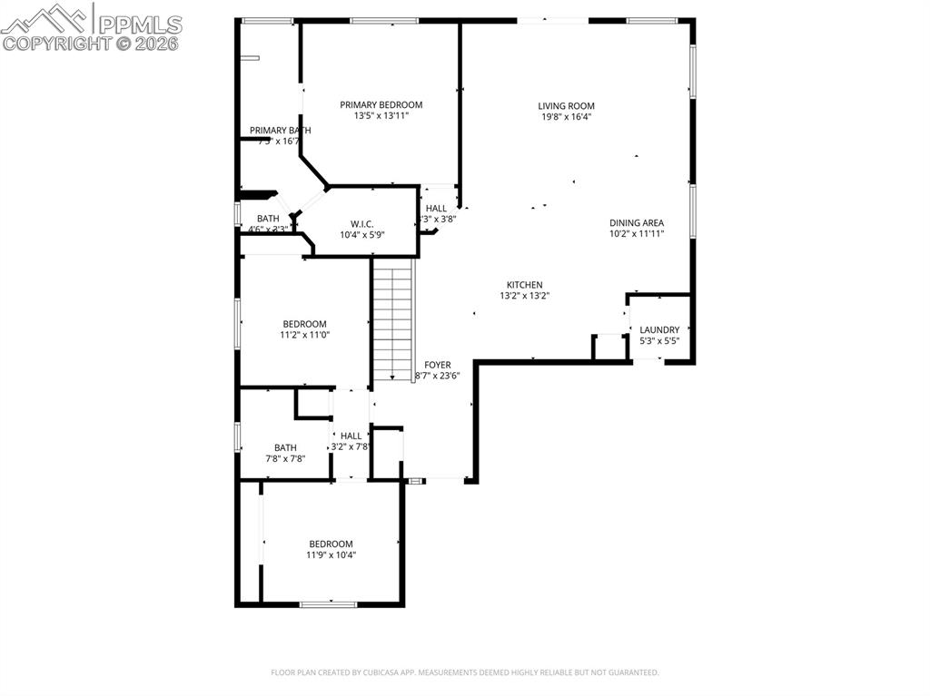
Floor Plan
Floor Plan
Front of Structure
Front of Structure
$515,000
12431 Mount Bross Place
Peyton, CO 80831
Peyton
Listed by Gregory Luczak, Coldwell Banker Realty · 719-271-8888
Active
Pikes Peak MLS

IDX listings provided by

Joseph Gary

RE/MAX Real Estate Group

12265 Oracle Blvd, Ste 200, Colorado Springs, CO 80921

5
Beds
3
Baths
3,096
Sq Ft

About This Home

Welcome to this beautifully maintained ranch-style home in Meridian Ranch, offered by the original owner and meticulously cared for throughout. With over 3,100 finished square feet, this home features 5 bedrooms, 3 full bathrooms, and a desirable open floor plan with vaulted ceilings and abundant natural light. The main level offers 3 bedrooms, including a spacious primary suite with a 5-piece bath, jetted tub, double vanities, and a large walk-in closet. The kitchen is the heart of the home, complete with granite countertops, stainless steel appliances, a generous counter bar, and a separate pantry. It flows seamlessly into the dining area and great room with durable engineered hardwood floors and walkout access to a huge composite deck—perfect for enjoying Colorado’s western sunsets. The fully finished walkout basement adds incredible flexibility with a large rec room, theater setup with JBL surround sound (included), 2 additional bedrooms, a full bath, and ample storage. The 3-car garage includes built-in shelving, a hardwired heater, and exterior access to the expansive backyard patio. The fenced yard offers 6-foot privacy fencing, gates on both sides, and plenty of lawn space. Major updates in 2024 include a new roof, furnace, A/C, and water heater—providing true peace of mind. Located near trails, schools, and Antler Creek Golf Course, this home blends comfort, space, and lifestyle.

Property Details

Status Active
Price / Sq Ft $166
Bedrooms 5
Bathrooms 3
Square Feet 3,096
City Peyton
Neighborhood Peyton
Year Built 2010
Lot Size 0.18
Property Type Residential
MLS # 1662842
Pikes Peak MLS

The real estate listing information and related content displayed on this site is provided exclusively for consumers' personal, non-commercial use and may not be used for any purpose other than to identify prospective properties consumers may be interested in purchasing. This information and related content is deemed reliable but is not guaranteed accurate by the Pikes Peak REALTOR® Services Corp.

Tour this home for free

No commitment, no strings attached. Just tell us when and we'll set it up.

Listing Info
Listed Mar 6, 2026
Updated Mar 6, 2026
MLS # 1662842

Sign in to colorado.house

We'll text you a code to verify your number.

Standard message rates may apply.

Get in touch with a local expert

Tell us what you're looking for and we'll be in touch shortly.