Built by locals who actually live here
117 Rabbil Creek Trail
49 photos
49 photos
Back of Structure
Supplemental documents
Living Room - Virtually Staged
Livinng Room and kitchen - Virtually Staged
Living and Dining  - Virtually Staged
Living Room  - Virtually Staged
Wood burning stove
Living room and kitchen  - Virtually Staged
Kitchen
Kitchen
Dining Area  - Virtually Staged
Primary bedroom  - Virtually Staged
Primary bedroom  - Virtually Staged
Main level bath
Bedroom #2  - Virtually Staged
Bedroom #2  - Virtually Staged
Laundry
Lower level family room  - Virtually Staged
Lower level family with wet bar  - Virtually Staged
Lower level Bedroom #3  - Virtually Staged
Lower level bath
Lower level Bedroom #4   - Virtually Staged
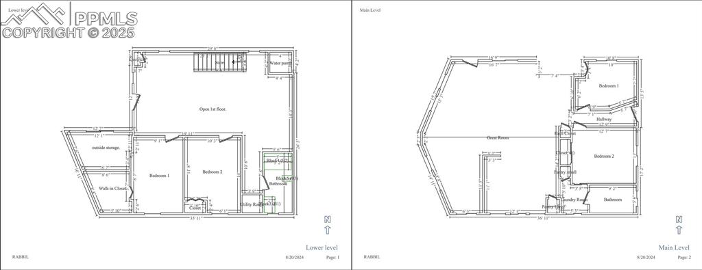
Floor Plan
Other
28x36 detached  two car garage
10x12 Storage Building
8x8 wood shed
8x12 loafing stall
8x10 + 4x6 meat processing shed
12x16 bunk house or office
10x16 tack barn
Horses
12x36 three stall horse barn
Windmill
Main Front
Bedroom
Other
Entry
Laundry
Living Room
Other
Kitchen
Living Room
Living Room
Bedroom
Other
Other
Basement
Bedroom
$575,000
117 Rabbil Creek Trail
Florissant, CO 80816
Listed by Chris Clark CRS GRI , Pikes Peak Homes and Land Ltd · 719-464-5839
Active
Pikes Peak MLS

IDX listings provided by

Joseph Gary

RE/MAX Real Estate Group

12265 Oracle Blvd, Ste 200, Colorado Springs, CO 80921

4
Beds
2
Baths
2,430
Sq Ft

About This Home

Welcome to a truly unique mountain retreat where rustic charm meets modern luxury. This stunning 2,400-square-foot home on 4.12 wooded acres has been meticulously remodeled from top to bottom. Step inside to find a brand-new custom kitchen with granite countertops, new bathrooms, and beautiful Australian cypress wood floors. The home is warmed by a state-of-the-art hydronic heating system and a cozy wood-burning stove with a custom hearth. The lower level offers a private living space with a new kitchenette and a separate entrance, making it perfect for rental income or a mother-in-law suite. Outside, the property is a dream for hobbyists and adventurers alike. You'll find a two-door garage with an expansive workshop, a 3-horse loafing shed with a corral, and two massive leveled areas at the top of the property with beautiful views, ready for your next building project. The property also includes a unique refrigerated wild game processing shed, a fenced-in area for animals, and a total of six outbuildings for all your needs. Located just minutes from Pike National Forest, this is a rare opportunity to own a fully-developed property with endless recreational possibilities.

Property Details

Status Active
Price / Sq Ft $237
Bedrooms 4
Bathrooms 2
Square Feet 2,430
City Florissant
Year Built 1985
Lot Size 4.21
Property Type Residential
MLS # 9537176
Pikes Peak MLS

The real estate listing information and related content displayed on this site is provided exclusively for consumers' personal, non-commercial use and may not be used for any purpose other than to identify prospective properties consumers may be interested in purchasing. This information and related content is deemed reliable but is not guaranteed accurate by the Pikes Peak REALTOR® Services Corp.

Tour this home for free

No commitment, no strings attached. Just tell us when and we'll set it up.

Listing Info
Listed Feb 26, 2026
Updated Mar 15, 2026
MLS # 9537176

Sign in to colorado.house

We'll text you a code to verify your number.

Standard message rates may apply.

Get in touch with a local expert

Tell us what you're looking for and we'll be in touch shortly.