Built by locals who actually live here
10803 Greenbelt Drive
49 photos
49 photos
COME AND SEE this golf-course home with an RV garage
Enjoy spectacular days and breathtaking nights year- with panoramic mountain views, colorful sunsets, and peaceful open skies
A welcoming covered front entry with spacious sitting area creates inviting curb appeal and comfortable outdoor living space great for relaxing or greeting guests.
This functional home office, thoughtfully converted from a formal dining room, offers flexible living space for remote work, study, or a private workspace.
The upgraded open-concept living, kitchen, and dining area features modern finishes, spacious design, and seamless flow—perfect for entertaining and everyday living.
The finished basement features a bonus wet bar and second kitchen, adding flexible entertaining space for guests, multi-generational living, or a home theater setup.
The oversized 4-car heated RV garage offers ample storage, workshop space, and parking for RVs, boats, or multiple vehicles—truly a must-see feature
Over ¼ acre of fully landscaped yard with mature trees, outdoor living space, and low-maintenance design for entertaining and year-round enjoyment
Let's check out the rest of this amazing home
The front patio offers direct walk-out access from the master bedroom, perfect for enjoying mountain views and outdoor living
Enjoy brand-new hardwood flooring throughout the main level, adding modern style, durability, and seamless flow
The cozy living room fireplace creates a warm, inviting atmosphere, with TV and wall mount included for instant entertainment
The modern kitchen features granite countertops and stainless steel appliances, perfect for gourmet cooking and stylish entertaining
The open-concept floor plan offers spacious living and dining areas for entertaining family and guests
The eat-in dining area offers scenic golf course views, perfect for meals with a relaxing, picturesque backdrop
Don’t miss the spacious walk-out composite deck, perfect for outdoor entertaining with golf course and mountain views.
The master suite is filled with abundant natural light, creating a bright, airy retreat with scenic views and relaxing comfort
And a cozy sitting room with direct walk-out access to the front patio
The updated master bath features granite countertops, contemporary lighting upgrades, and elegant finishes for a refreshed, spa-like ensuite experience
With a jetted soaking tub & free standing shower
Renovated laundry room adds functional convenience with updated finishes, extra storage, and efficient design for everyday living
The oversized 4-car heated RV garage includes custom shelving and built-in storage, offering ample parking, workshop space, and organizational convenience for vehicles, tools, and recreational gear
With a natural gas heating furnace for efficient forced-air heating, energy-saving comfort, and reliable year-round warmth in your oversized workshop
And includes a workshop with a 100-amp electrical sub-panel, offering upgraded power capacity, organized tool circuits, and flexible space for a hobby shop, woodworking, or electrical projects
Two bright bedrooms and a full, updated bathroom are just down the hall, offering comfortable living space and convenient access for family and guests
These spacious bedrooms offer versatile living space for guests, family members, or flexible use as home offices, bonus rooms, or guest suites
This full bathroom features granite countertops and a thoughtful dual-space layout for privacy and easy sharing, combining style with functional design
search for - Each bedroom features large windows and plenty of closet space

Here’s a short, keyword-optimized photo description to help with Google and AI search visibility:

Each bedroom features large windows that let in abundant natural light and plenty of closet space for storage, creating bright, comfortable living areas
Basement bedroom with adjacent full bathroom, offering convenient access, added privacy, and flexible living space in the finished lower level
Updated space with granite counters and modern cabinetry upgrades, combining stylish design with functional storage
The garden level basement provides great natural light & views
This space would be a great library/reading area
Built-in shelves could support a tv area or knick-knacks & trophies
The possibilities are endless with this much space
And this section would be great for cards or other tabletop gaming
This bonus dining area makes clean up a breeze after parties
More than just a wet bar & featuring a live edge countertop
Another open space provides room to stretch out and relax
DON'T MISS the chef's pantry / staging area (so functional!)
NEW railings match the interior stairway
And the lower concrete porch could easily fit a hot tub
A shed with matching stucco is great for outdoor storage
The backyard is fully fenced & everything is nicely landscaped
MAIN LEVEL (including garage & decks/porches)
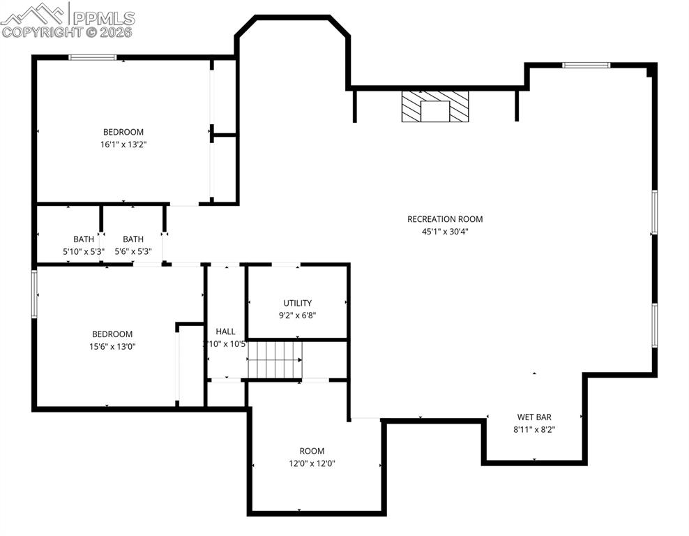
BASEMENT
Aerial View
The Antler Creek Golf Course is a great backyard view!
Aerial View
Aerial View
$700,000
10803 Greenbelt Drive
Peyton, CO 80831
Peyton
Listed by Josh Case ABR AHWD GRI MRP PPRES , Impressions Real Estate Company LLC · 719-649-4827
Active
Pikes Peak MLS

IDX listings provided by

Joseph Gary

RE/MAX Real Estate Group

12265 Oracle Blvd, Ste 200, Colorado Springs, CO 80921

5
Beds
3
Baths
4,105
Sq Ft

About This Home

COME AND SEE this amazing home with so much to love you'll have to visit twice! With over 4,100 square feet of beautifully finished living space on more than a quarter acre, this home is perfectly positioned alongside the tranquil golf course surroundings and the stunning mountain views. From the moment you arrive, you’ll notice the inviting covered wraparound front porch and impressive curb appeal, but what truly sets this property apart is the oversized 4-car heated RV garage with a built-in workshop—an incredible find for car enthusiasts, RV owners, hobbyists, or anyone needing premium storage and workspace. Inside, hardwood floors flow through the home office, hallways, spacious living room, and into the open-concept kitchen and dining area with picturesque golf course views. The kitchen features granite countertops, a double oven, abundant cabinetry, and a generous walk-in pantry. The primary suite offers a private sitting area with direct walk-out access to the covered porch, plus an updated five-piece bath and custom walk-in closet. Two additional main-level bedrooms are located on the opposite side of the home with an updated bathroom and ample storage. The fully finished walk-out basement adds incredible flexibility with a large recreation space, wet bar and second kitchen featuring a striking live-edge countertop, extra pantry storage, and two additional bedrooms perfect for guests, offices, or flex rooms. Step outside to the partially covered composite deck overlooking the golf course or relax on the concrete patio below—ideal for outdoor dining or a future hot tub. Mature landscaping and a storage shed complete the property. With golf course views, mountain scenery, RV parking, heated garage space, walk-out basement, hardwood floors, granite finishes, and seamless indoor-outdoor living, this home offers the perfect blend of luxury, space, and lifestyle. Schedule your private showing today before this opportunity is gone.

Property Details

Status Active
Price / Sq Ft $171
Bedrooms 5
Bathrooms 3
Square Feet 4,105
City Peyton
Neighborhood Peyton
Year Built 2006
Lot Size 0.28
Property Type Residential
MLS # 9443048
Pikes Peak MLS

The real estate listing information and related content displayed on this site is provided exclusively for consumers' personal, non-commercial use and may not be used for any purpose other than to identify prospective properties consumers may be interested in purchasing. This information and related content is deemed reliable but is not guaranteed accurate by the Pikes Peak REALTOR® Services Corp.

Tour this home for free

No commitment, no strings attached. Just tell us when and we'll set it up.

Listing Info
Listed Feb 26, 2026
Updated Feb 26, 2026
MLS # 9443048

Sign in to colorado.house

We'll text you a code to verify your number.

Standard message rates may apply.

Get in touch with a local expert

Tell us what you're looking for and we'll be in touch shortly.