Built by locals who actually live here
10744 Rhinestone Drive
28 photos
28 photos
Extra parking spot on driveway, covered by snow
Living Room
Living Room
Kitchen
Kitchen
Primary Bedroom
Primary Bedroom
Primary Bath
Office
Office
Upstairs Hallway Nook
Upper Bedroom
Bedroom
Upper Hall Bath
Junior Master with en Suite
Junior Master with en Suite
En Suite Bath
En Suite Bath
Composite Deck
Composite Deck great for entertaining
Flagstone Patio
Half Bath Main Floor
Main Floor Laundry
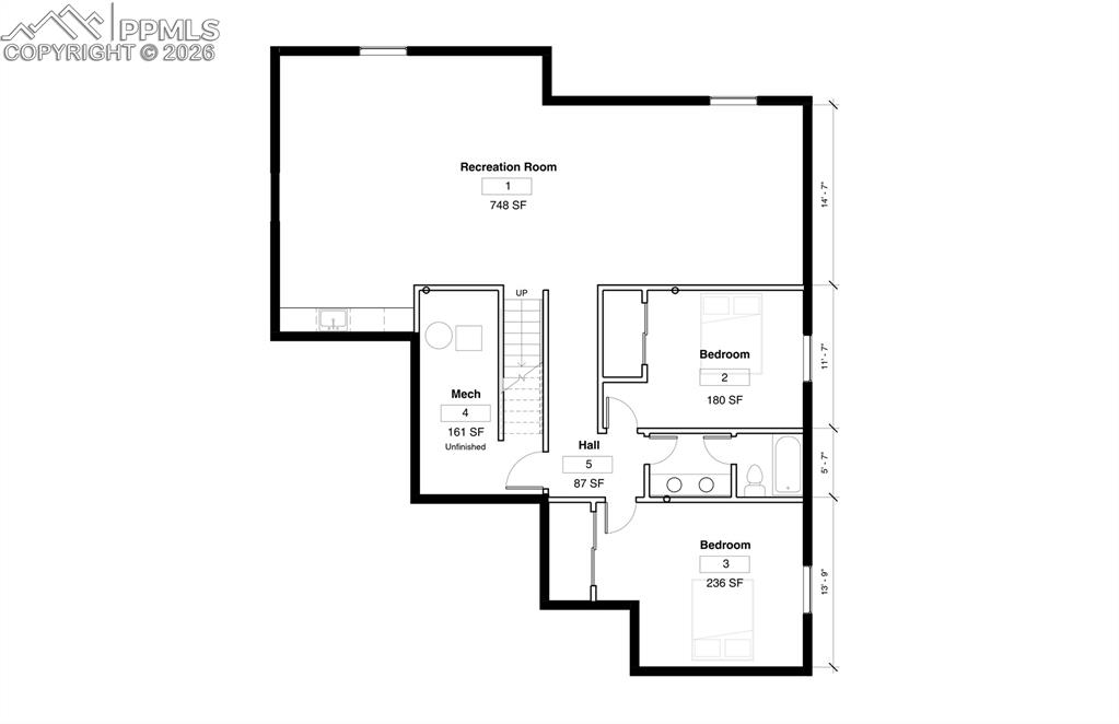
Unfinished Basement space to add 2 additional bedrooms, 1 bathroom, rec room and wet bar
Unfinished Basement space to add 2 additional bedrooms, 1 bathroom, rec room and wet bar
Main Level
Upper Level
Unfinished Basement Plan with future potential build out
$670,000
10744 Rhinestone Drive
Colorado Springs, CO 80908
Black Forest
Listed by Matthew Orsillo, Better Homes and Gardens Real Estate Kenney & Company · 719-287-5811
Active
Pikes Peak MLS

IDX listings provided by

Joseph Gary

RE/MAX Real Estate Group

12265 Oracle Blvd, Ste 200, Colorado Springs, CO 80921

4
Beds
4
Baths
2,323
Sq Ft

About This Home

This wonderful home features 10' ceilings in the great room and a main-level primary suite with a bay-window sitting area and five-piece bath. The gourmet kitchen offers a large center island, oversized cabinetry, quartz countertops, stainless steel appliances, engineered hardwood floors, and a pantry. A main-level study with French doors provides flexible use as an office, dining room, or potential bedroom. Upstairs includes a junior primary suite with a private bath, plus two additional bedrooms and a full bath. The open great room features a gas log fireplace and a wall of windows, ideal for entertaining as it connects to the backyard space. Enjoy mountain views of Pikes Peak from the back deck and flagstone patio. Main level laundry and three car tandem garage. The unfinished basement offers approximately 1,500 sq ft with a pre-plumbed full bath, wet bar, and HVAC rough-ins— add two additional bedrooms, a bath and large rec room. Conveniently located near Pine Creek Golf Course, I-25, Powers Blvd., Highway 83, and the growing InterQuest corridor, with walking access to Pine Creek High School and Challenger Middle School.

Property Details

Status Active
Price / Sq Ft $288
Bedrooms 4
Bathrooms 4
Square Feet 2,323
City Colorado Springs
Neighborhood Black Forest
Year Built 2005
Lot Size 0.19
Property Type Residential
MLS # 9372799
Pikes Peak MLS

The real estate listing information and related content displayed on this site is provided exclusively for consumers' personal, non-commercial use and may not be used for any purpose other than to identify prospective properties consumers may be interested in purchasing. This information and related content is deemed reliable but is not guaranteed accurate by the Pikes Peak REALTOR® Services Corp.

Tour this home for free

No commitment, no strings attached. Just tell us when and we'll set it up.

Listing Info
Listed Feb 26, 2026
Updated Mar 19, 2026
MLS # 9372799

Sign in to colorado.house

We'll text you a code to verify your number.

Standard message rates may apply.

Get in touch with a local expert

Tell us what you're looking for and we'll be in touch shortly.