Built by locals who actually live here
1047 Florence Avenue
35 photos
35 photos
Front of Structure
Other
Front of Structure
Garage
Entry
Living Room
Living Room
Dining Area
Dining Area
Kitchen
Kitchen
Other
Kitchen
Laundry
Laundry
Other
Bedroom
Bedroom
Bathroom
Bedroom
Bedroom
Bathroom
Bathroom
Bedroom
Bedroom
Side of Structure
Back of Structure
Side of Structure
Yard
Garage
Garage
Garage
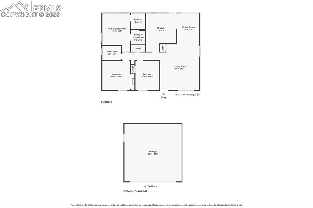
Floor Plan
Floor Plan
Floor Plan
$329,900
1047 Florence Avenue
Colorado Springs, CO 80905
West Side, Southwest
Listed by Patrick Manchester, Manchester Properties, LLC · 719-338-3203
Active
Pikes Peak MLS

IDX listings provided by

Joseph Gary

RE/MAX Real Estate Group

12265 Oracle Blvd, Ste 200, Colorado Springs, CO 80921

3
Beds
2
Baths
1,073
Sq Ft

About This Home

Welcome to this inviting ranch style home in Stratton Meadows, offering true main-level living with no stairs and a blend of modern updates and thoughtful touches throughout. Conveniently located near Fort Carson, schools, shopping, and dining, this home provides both comfort and accessibility in a well-established Colorado Springs neighborhood. Inside, you’ll find updated flooring and a fresh, cool color palette that adds personality and warmth...standing out from the sea of grey and white found in many homes today. The living spaces feel bright and welcoming, while the modern kitchen appliances make everyday cooking and entertaining easy. Both bathrooms have been updated, creating clean, stylish spaces that are ready to enjoy. Vinyl windows throughout the home allow for plenty of natural light while improving energy efficiency and comfort. The oversized two-car garage provides excellent space for vehicles, storage, tools, or hobby space...something that’s increasingly hard to find. Outside, the home continues to shine with a newly installed fence, offering privacy and security, along with charming garden planter boxes ready for flowers, herbs, or vegetables. With its functional layout, tasteful updates, and convenient location just minutes from Fort Carson and downtown Colorado Springs, this Stratton Meadows home offers the perfect combination of practicality, character, and move-in-ready comfort. Schedule your private showing today and discover the ease of single-level living in a location that keeps you close to everything!

Property Details

Status Active
Price / Sq Ft $307
Bedrooms 3
Bathrooms 2
Square Feet 1,073
City Colorado Springs
Neighborhoods West Side, Southwest
Year Built 1958
Lot Size 0.16
Property Type Residential
MLS # 3437889
Pikes Peak MLS

The real estate listing information and related content displayed on this site is provided exclusively for consumers' personal, non-commercial use and may not be used for any purpose other than to identify prospective properties consumers may be interested in purchasing. This information and related content is deemed reliable but is not guaranteed accurate by the Pikes Peak REALTOR® Services Corp.

Tour this home for free

No commitment, no strings attached. Just tell us when and we'll set it up.

Listing Info
Listed Mar 17, 2026
Updated Mar 17, 2026
MLS # 3437889

Sign in to colorado.house

We'll text you a code to verify your number.

Standard message rates may apply.

Get in touch with a local expert

Tell us what you're looking for and we'll be in touch shortly.